
Мы работаем без предоплаты. Вы платите только по завершению этапа строительства

Почувствуйте атмосферу вашего будущего дома
| С отделкой 6 672 000 руб | |
|---|---|
Фундамент | Свайно-Винтовой фундамент D 108 мм. L 2500 мм. Ленточный фундамент — опция |
Гидроизоляция | Двойная гидроизоляция фундамента |
Коммуникации | Ввод закладных труб для канализации и водоснабжения по согласованию с Заказчиком |
Наружные стены | Профилированный брус 145х145мм. 195х145 мм. (опция) |
Капитальные перегородки | Профилированный брус 145х145мм. |
Соединение бруса | Деревянные нагеля |
Рубка углов | “Теплый угол” в перевязку с коренным шипом “в обло” выпуски бруса за пределы капитальных стен |
Утепление и шумоизоляция | Профессиональный утеплитель на основе каменной ваты повышенной плотности Технониколь или ROCKWOOL Пол 1 этажа — 150 мм. Потолок — 150 мм |
Полы | Черновой пол обрезная доска 25 мм. Чистовой пол OSB 18 мм. Подготовка для ламината и плитки |
Стропильная система и обрешетка | Выполняется из качественной доски 1 сорт 150х40мм. Обрешетка из доски 100х25мм. производится обработка антисептиком |
Потолок | Подшивается вагонкой камерной сушки |
Высота 1-ого этажа | 2300 мм. |
Кровля | Ондулин (цвет на выбор) Металлочерепица (опция) Гибкая черепица “TEGOLA”, “KATEPAL” (опция) |
Свесы и подбои | Вагонка |
Окна | Окна ПВХ — ПОДАРОК Собственное производство. Профиль KBE, фурнитура ROTO. |
Двери | Входная дверь металлическая, утепленная. Два замка, ночная задвижка. |
Террасы и эркеры | Входят в стоимость проекта при наличии на чертеже. Дополнительной оплаты не требуется. |
Антисептирование | Обрабатываются лаги первого этажа, нижние венцы |

— Разработка проекта

— Перепланировка БЕСПЛАТНО

— Подготовка комплекта документов для согласования в БТИ

— Выезд специалиста на объект

Мы подготовили ответы на все популярные вопросы, их можно посмотреть здесь
Получите бесплатную консультацию
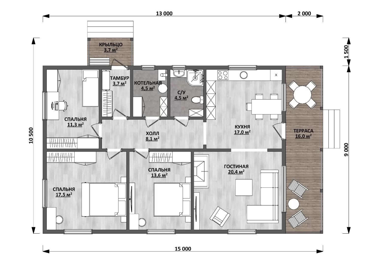
Проект дома из профилированного бруса DG44 от компании RIFT — это идеальное сочетание классического стиля и современных технологий. Дом площадью 106 м² с размерами 9×9 м идеально подходит для комфортного проживания в загородных условиях. Изготовленный из профилированного бруса, этот дом гарантирует отличные теплоизоляционные характеристики, долговечность и надежность, а также экологичность материала.
Практичная планировка и продуманные детали обеспечивают комфортное и удобное проживание для семьи. Благодаря использованию профилированного бруса, дом будет иметь эстетичный внешний вид, сохраняя при этом тепло в зимнее время и прохладу летом.